VERKOCHT
Waarom je hier zou willen wonen…
Klaar om uit te vliegen? Deze tweekapper met sfeervolle serre aan de Adelaar 111 kan zomaar jouw nieuwe nest zijn.
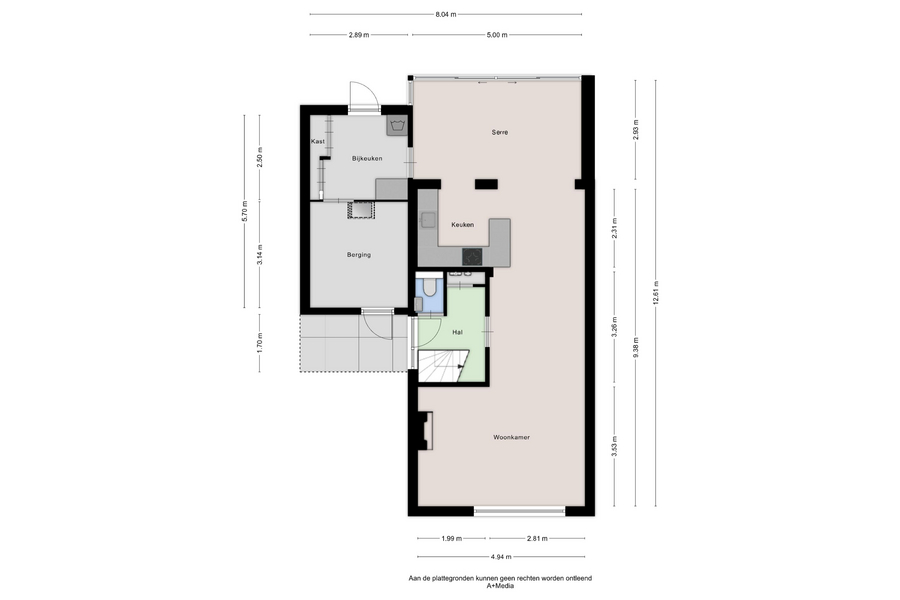
De woonkamer is warm en licht, met een elektrische haard die zorgt voor extra gezelligheid op koude dagen. De keuken sluit hier mooi op aan en samen met de serre vormt dit een fijne, open leefruimte. De serre heeft dankzij de schuifpui een prachtige lichtinval en is dé plek voor een kop koffie, een goed boek of een lange avond natafelen. De bijkeuken en inpandige berging maken de begane grond extra praktisch. Dankzij de airconditioning blijft het binnen altijd comfortabel, ook in de warmere maanden.
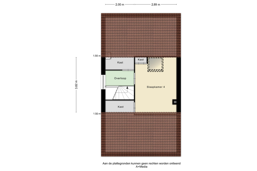
Op de eerste verdieping vind je drie slaapkamers, stuk voor stuk netjes afgewerkt en goed van formaat. De badkamer is modern en compleet met een inloopdouche, wastafelmeubel, toilet en een designradiator. Via de vaste trap bereik je de tweede verdieping. Hier bevindt zich een vierde slaapkamer die zich ook uitstekend leent als thuiswerkplek of hobbyruimte. Daarnaast is er volop bergruimte, waardoor je al je spullen kwijt kunt.
De tuin ligt op het noorden en dankzij de royale afmetingen en slimme indeling vind je hier altijd een fijne plek om te zitten. Er is een leuke vijver, mooie borders en een prettig terras waar je heerlijk kunt ontspannen.
De woning heeft energielabel C en is deels voorzien van HR glas en deels van dubbel glas. Verder heeft de woning extra spouwmuurisolatie.
De ligging is ideaal. De Adelaar is een straat in een rustige, kindvriendelijke wijk die populair is bij jonge gezinnen. Sportvoorzieningen zoals Berghem Sport liggen dichtbij, net als scholen, winkels en alle dagelijkse voorzieningen. Basisschool IKC Regenboog ligt op loopafstand. Voor een hapje eten of een gezellig drankje fiets je zo naar de Osse binnenstad. Oss heeft een hoog voorzieningenniveau met onder andere een theater, bioscoop, zwembad, bowlingcentrum, bibliotheek en museum. Ook op het gebied van winkels en gezondheidszorg kom je hier niets tekort.
Steden als ‘s-Hertogenbosch, Nijmegen, Uden, Veghel en Eindhoven zijn goed bereikbaar met de auto. Reis je liever met de bus of de trein? Ook dat kan, het NS‑station Oss Centraal ligt op slechts vijf minuten fietsen.
Ben je op zoek naar een ruime en sfeervolle woning met een heerlijke serre en een verrassend grote tuin? Dan is Adelaar 111 absoluut een bezichtiging waard.
Indeling en bijzonderheden
Begane grond
– Overdekte entree.
– Ruime hal met garderoberuimte, meterkast en modern toilet met fonteintje.
– Gezellige lichte woonkamer met sfeervolle elektrische haard.
– Royale open keuken met diverse inbouwapparatuur (o.a. een Quooker).
– Plek voor een grote eettafel in de prachtige serre.
– Schuifpui naar de achtertuin.
– Praktische bijkeuken met aansluitingen voor de wasmachine en de droger.
– Inpandige berging voor de fietsen.
– Airco.
– PVC vloer.
Eerste verdieping
– Overloop.
– Drie mooie slaapkamers, waarvan één is voorzien van inbouwkast.
– Moderne badkamer met toilet, wastafelmeubel, inloopdouche én designradiator.
Tweede verdieping
– Bereikbaar met vaste trap.
– Vierde slaapkamer, thuiswerkplek of hobbyruimte.
– Overloop met veel bergruimte voor de spullen die je niet dagelijks nodig hebt.
– Dakraam voor natuurlijk lichtinval.
Tuin
– Fijne royale tuin op het noorden, met altijd plekjes in de zon.
– Vrije ligging met veel privacy.
– Groot terras en leuke vijver.
– Tuinverlichting en buitenkraantje.
Parkeren
– Eigen oprit met carport en laadpaal.
– Plek voor twee auto’s.
– Meer dan voldoende parkeergelegenheid in de directe omgeving.
Overig
– Rustige woonwijk met veel jonge gezinnen.
– Keurige staat van onderhoud.
– Alle ramen zijn voorzien van horren.
– Gedeeltelijk HR++ glas.
– Uitgebouwd.
– Glasvezel voor razendsnel internet.
Kenmerken
Overdracht
– VERKOCHT.
– Aanvaarding in overleg.
Bouw
– Twee-onder-een-kap woning met inpandige berging.
– Bouwjaar 1974.
Oppervlakten en inhoud
– Woonoppervlakte ca. 137 m2.
– Overige inpandige ruimte ca. 9 m2.
– Gebouwgebonden buitenruimte ca. 5 m2.
– Externe bergruimte ca. 0 m2.
– Inhoud ca. 487 m3.
– Perceel 207 m2.
Energie
– Energielabel C.
– Dakisolatie, muurisolatie, vloerisolatie, gedeeltelijk dubbel glas, HR-glas.
– Nefit Trendline HRC30 CWS cv-ketel (2014).
– Airconditioning (split-unit).
Kadastrale gegevens
– Gemeente Oss.
– Sectie G.
– Perceel 1248.
– Oppervlakte 207 m2.
– Volle eigendom.






























































































