ONDER OPTIE € 650.000 k.k.
Waarom je hier zou willen wonen…
Groot? Ja! Nieuw? Zeker! Energiezuinig? Absoluut!
Deze ruime twee-onder-een-kapwoning mét garage uit 2023 is volledig gasloos, tot in detail afgewerkt en klaar voor de toekomst. Met een energielabel A+++, 16 zonnepanelen, een WTW-installatie, warmtepomp en HR++ glas woon je hier comfortabel, modern en zorgeloos.
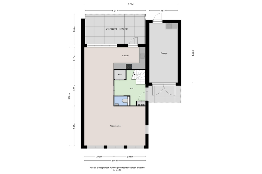
Binnen ervaar je direct hoe prettig het huis is opgezet. De begane grond beschikt over een flinke entree met toilet, berging en garderoberuimte. Vanuit hier loop je door naar de royale woonkamer: een fijne leefruimte met volop plek voor een comfortabele zithoek en een grote eettafel. De keuken ligt aan de achterzijde en sluit mooi aan op de woonkamer. Dankzij de directe verbinding met de tuin en de overkapping lopen binnen en buiten hier moeiteloos in elkaar over. De gehele begane grond is bovendien voorzien van vloerverwarming, wat het wooncomfort compleet maakt.
Op de eerste verdieping bevinden zich drie mooie slaapkamers en een luxe afgewerkte badkamer. Alles is strak, modern en uitgevoerd in dezelfde hoogwaardige stijl als de rest van de woning. De tweede verdieping is te bereiken met een vaste trap. Hier vind je de vierde slaapkamer, een aparte wasruimte en extra bergruimte. Ideaal als hobbykamer, werkkamer of logeerkamer.
Buiten beschikt deze woning over een onderhoudsvriendelijke achtertuin op het westen, praktisch ingericht en voorzien van een fraai afgewerkte tuinkamer. Deze is afsluitbaar, verwarmd en uitgevoerd met glazen panelen en een lichtstraat, waardoor je hier het hele jaar door comfortabel kunt zitten. Een fijne plek om tot in de avond van de zon te genieten. De woning ligt aan een rustig straatje met alleen bestemmingsverkeer en heeft bovendien een garage met openslaande deuren en een eigen oprit. Hier kun je echt alle kanten op.
De woning ligt op een gewilde locatie, aan de rand van nieuwbouwwijk De Nieuwe Erven, met alle voorzieningen binnen handbereik. Om de hoek ligt een speeltuin en binnen vijf minuten fiets je naar basisschool Eikenwijs, de kinderopvang en het gezellige centrum van Heesch. Hier vind je diverse winkels en restaurants. Ook de sportvelden van voetbalclub HVCH en hockeyclub MHC liggen op korte fietsafstand. Zin in een wandeling? Binnen een kwartier loop je midden in natuurgebied Landerij van Tosse of rondom de Geffense Plas.
Steden als Oss, ’s-Hertogenbosch, Nijmegen en Eindhoven zijn goed bereikbaar met zowel de auto als het openbaar vervoer. Het NS-station in Oss bereik je in ongeveer vijftien minuten fietsen.
Zoek jij een instapklare, supernieuwe en energiezuinige woning met verrassend veel ruimte en een rustige ligging? Dan is dit er eentje die je gezien moet hebben. Tot snel!
Indeling en bijzonderheden
Begane grond
– Ruime entree met garderoberuimte, meterkast en berging.
– Toilet met fonteintje.
– Heerlijk ruime woonkamer met veel lichtinval.
– Plek voor een grote eettafel.
– Prachtige taatsdeur zorgt voor een chique uitstraling.
– Luxe open keuken (2023) met inbouwapparatuur én Quooker.
– Afsluitbare tuinkamer met glazen panelen, verwarming en een mooie lichtstraat.
– Op de vloer ligt laminaat met vloerverwarming.
– De wanden zijn gespachteld, de plafonds gespoten.
Eerste verdieping
– Riante overloop.
– Drie royale slaapkamers, waarvan één met airconditioning.
– Schitterende badkamer (2023) met toilet, douche, bad, wastafelmeubel en designradiator.
– De wanden zijn gespachteld, de plafonds gespoten.
– Laminaatvloer.
Tweede verdieping
– Bereikbaar met vaste trap.
– Vierde slaapkamer.
– Wasruimte / technische ruimte.
– De wanden zijn gestuukt, de plafonds geschilderd.
– Laminaatvloer.
– Extra bergruimte onder de schuine kanten.
Tuin en garage
– Fijne onderhoudsvriendelijke tuin met zonnige ligging op het westen.
– Garage met openslaande deuren, elektra en water.
– Bereikbaar via garage.
– Buitenkraantje.
– Tuinverlichting.
Parkeren
– Parkeren op eigen oprit.
– Plek voor een auto in de garage.
– Meer dan voldoende parkeergelegenheid in de directe omgeving.
Overig
– Volledig instapklaar en energielabel A+++.
– Zonnepanelen (16 stuks).
– WTW-installatie en warmtepomp.
– Bouwjaar 2023, dus alles is zo goed als nieuw.
– Moderne meterkast.
– Glasvezel aansluiting.
Kenmerken
Overdracht
– Vraagprijs € 650.000,- k.k.
– Aanvaarding in overleg.
Bouw
– Twee-onder-een-kapwoning met garage.
– Bouwjaar 2023.
Oppervlakten en inhoud
– Woonoppervlakte ca. 120 m2.
– Overige inpandige ruimte ca. 52 m2.
– Gebouwgebonden buitenruimte ca. 23 m2.
– Externe bergruimte ca. 0 m2.
– Inhoud ca. 629 m3.
– Perceel 233 m2.
Energie
– Energielabel A+++.
– Dakisolatie, muurisolatie, vloerisolatie, HR++ glas, volledig geïsoleerd.
– Warmtepomp (Panasonic Aquarea, 2023).
– WTW-installatie (Itho, 2023).
– Airconditioning (Mitsubishi, 2024).
– 16x zonnepanelen (Trina Solar, 2023).
Kadastrale gegevens
– Gemeente Heesch.
– Sectie F.
– Perceel 1324.
– Oppervlakte 233 m2.
– Volle eigendom.




























































































